売中古戸建
 
商談中
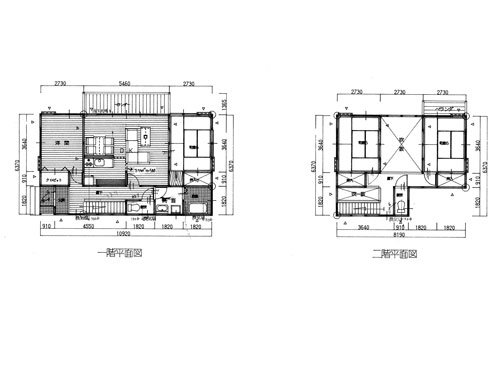
間取り 建物面積
4LDK

1F床面積67.90u
2F床面積33.12u
延床面積 101.02u
30.5坪)


土地権利 土地面積
  719u
(約217坪)
積立金 管理費
 

 

駐車場 間取内訳
 
所在地 群馬県吾妻郡長野原町大字北軽井沢1990
借地期間   地代  
築年月 平成1112 定期借地の時  
建物構造   建築確認  
現況   建物規模  
引渡し日   総戸数  
用途地域  
条件等  
接道状況

 

特記事項  
設備  
備考 固定資産税¥39,900/年